Otras Características
Otras Características

Propiedades

Descripción

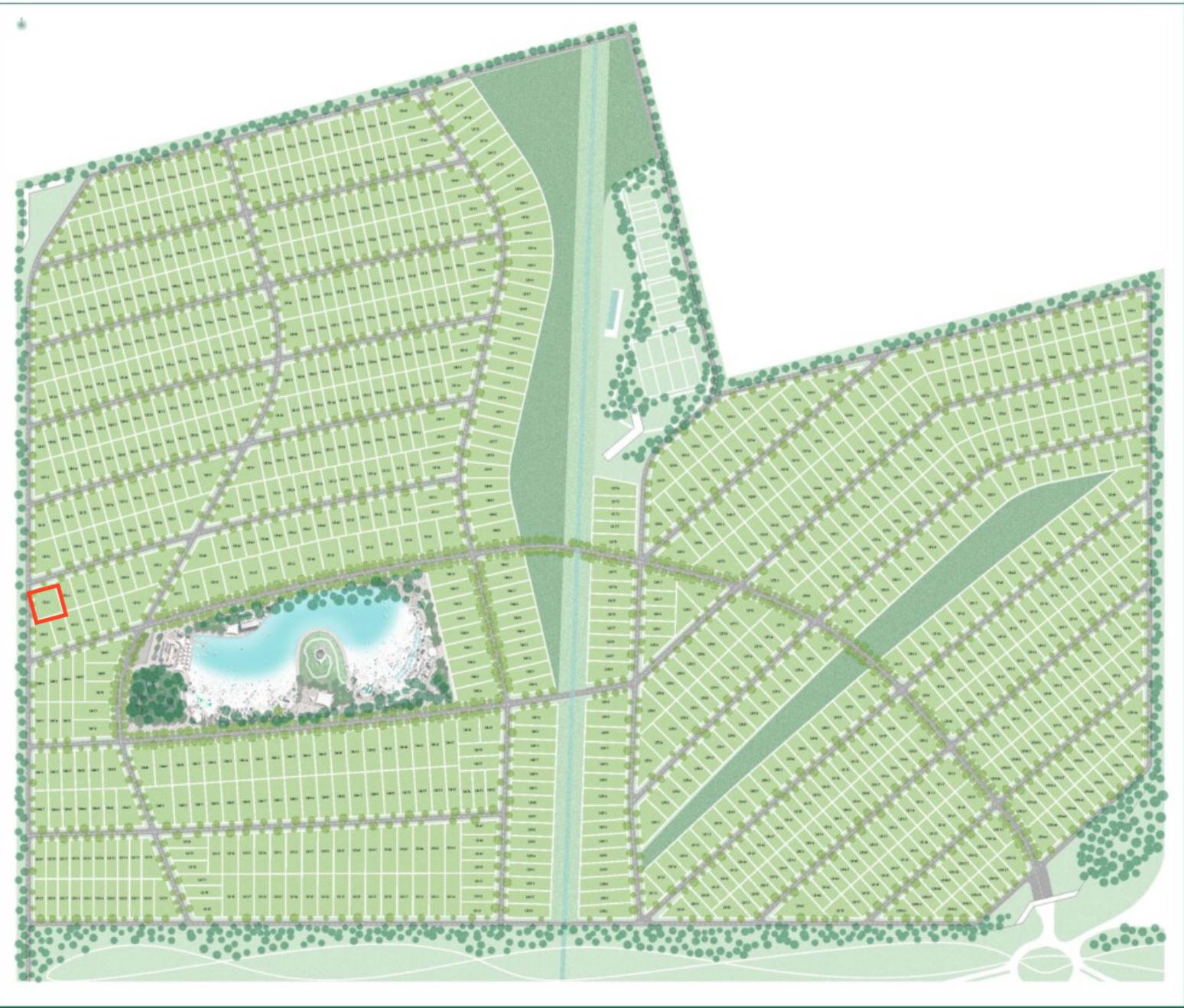
Vida Lagoon: Terreno en venta cercano al lago

Superficie:
• 722 m²
• Orientación frente norte
Descripción del proyecto: Vida Lagoon es un desarrollo residencial único en el interior del país. El proyecto cuenta con lotes que van desde 600 a 1.200 m², más 60 hectáreas destinadas a áreas verdes, un Club House y una laguna de aguas cristalinas de 23.300 m², el gran rasgo distintivo del barrio.

La laguna tendrá muelle para deportes acuáticos, juegos inflables y playas de arena de cuarzo. El agua será filtrada mediante una innovadora tecnología, dando lugar a un proyecto sustentable, amigable con el medio ambiente y de bajo costo de mantenimiento.

Amenities y espacios comunes:
• Laguna cristalina
• Playa
• Zona de playa familiar
• Espacio para deportes náuticos
• Club House / Centro de eventos
• Servicios de playa (reposeras, sombrillas y sanitarios)
• Puesto de comida
• Cancha de vóley playa
• Restaurante con vista a la laguna
• Parque de conservación natural
• Juegos infantiles
• Muelles
• Península con mirador

• Estacionamientos

Para ver la ubicación de la propiedad, hace click acá.
Si necesitas vender una propiedad, conocé como trabajamos haciendo click acá.

Visión General

  • ID 38408
  • Tipo
  • Dimensión 722 m2

Detalles

  • ID Propiedad 38408
  • Precio u$s 110.000
  • Tipo Propiedad
  • Tipo Operación
  • Dimensión 722 m2
  • Expensas $300.000
  • Zonificación Funes
  • Terreno 722 m2

Comparar

Terreno en Vida Lagoon

Clara Crespo

Agente de Ventas