Otras Características
Otras Características

Propiedades

Descripción

Monoambiente en 3 de Febrero al 400
Tipología: Monoambiente a estrenar.
Descripción: Al ingresar al departamento nos encontramos con el living-comedor y cocina semi integrada. Vestidor y baño. Patio. Todos cuentan con placares empotrados.
Unidades disponibles:
Bloque II
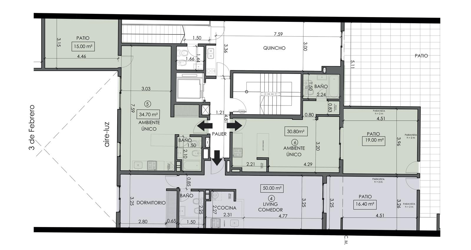
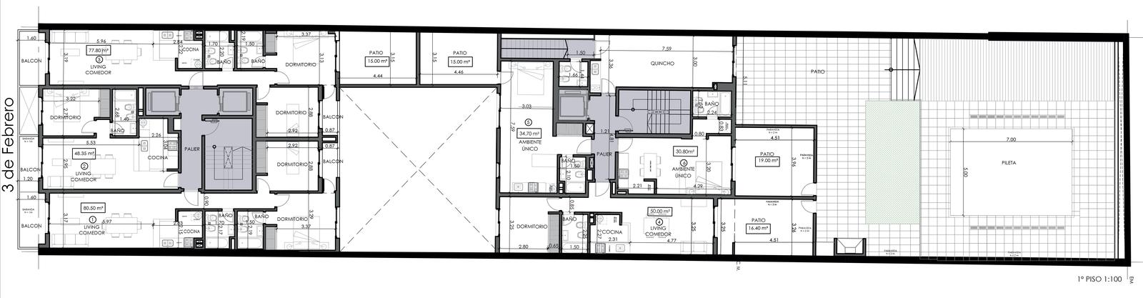
Piso 1 Dto – 39,7 m2 I Monoambiente al Aire Luz 34,7 m2 + Patio 15 m2 I 62.000 USD
Piso 2 al 9 – 29 m2 I Monoambiente al Aire Luz – ( 5 Piso no disponible ) I 46.000 USD
Piso 1 Dto – 37,1 m2 I Monoambiente contrafrente 30,8 m2 + Patio 19 m2 I 58.000 USD
Piso 7  y  8  Dto – 31,8 m2 I Monoambiente contrafrente I 50.000 USD
Detalles del edificio : 
* Panel Solar
* Portón Eléctrico
* Llave Eléctrica
* Cargador para Coche Eléctrico
* Solarium
* Quincho
* Pileta
* Parrilla
* Cochera
Edificio: Con dos bloques de 9 plantas que posee unidades de un dormitorio, dos dormitorios y ambientes únicos. Cuenta con 3 niveles de cocheras, SUM y áreas recreativas con parrillero, piscina y solárium
Entrega: Octubre 2024.
Cochera: Cocheras disponibles en PB – SS 11 m2 a U$D 17.000 (valor no incluido en el precio ).
Ubicación: En barrio Martin sobre calle 3 de Febrero 458, a pocas cuadras del parque Urquiza y del Monumento a la Bandera.
Para ver la ubicación de la propiedad, hace click acá.
Si necesitas vender una propiedad, conocé como trabajamos haciendo click acá.

Visión General

Detalles

  • ID Propiedad 14547
  • Precio 62.000
  • Tipo Operación
  • Ambientes 1
  • Baños 1
  • Dimensión 40 m2
  • Condición Excelente
  • Antigüedad A estrenar

Propiedades que pueden interesarte

Comparar

Monoambiente en 3 de Febrero al 400

Victoria Rodríguez Louro

Agente de Ventas