Otras Características
Otras Características

Propiedades

Descripción

Álvarez Thomas 2700: Casa de dos dormitorios con cochera y vista al río, en Condominio Barrancas de Alberdi.

Descripción: Casa tipo dúplex en un predio de jardín parquizado. Cocina y living comedor en planta baja y dormitorios en planta alta. Cocina integrada, toilette de recepción, un baño completo, y la habitación principal en suite con el segundo baño. Posee un vestidor y ambos dormitorios cuentan con placares empotrados y puertas corredizas. Además  dispone de terraza exclusiva y parrillero. Calefaccionado con radiadores y/o aires split. Ambientes muy luminosos. Con y sin vista parcial al rio. Cocheras disponibles.

Barrancas de Alberdi: Es un desarrollo único de arquitectura premium en la zona norte de Rosario. Un condominio cerrado de 71 unidades, con vista franca y parcial al Rio Paraná, emplazado bajo una arboleda centenaria, en un predio de 2 hectáreas privilegiadas de la zona de Alberdi, y a pocos metros de la playa y sobre la barranca, te ofrece una vida plena frente al Rio.

Dentro del predio, una antigua casona española de los años treinta, joya arquitectónica, convertida en un confortable Club House Premium para los residentes. La restauración respeta los rasgos de la arquitectura original, revalorizando la estructura y destacando todos y cada uno de los detalles que la distinguen. En este proyecto se trató de conservar la mayor parte de los árboles añejos con más de 70 años, pinos, cedros, álamos y otras especies arbóreas que configuran un entorno único donde se realizó una forestación nueva, para completar los espacios y plantar nuevos tipos de árboles.

Cuenta con seguridad privada las 24 hs. Posee ascensores para acceder  a los distintos niveles de la edificación , facilitando también movilizarse a personas con alguna minusvalía.

Es una excelente alternativa para quienes prefieren vivir la seguridad y el confort de un condominio cerrado en una tradicional zona residencial de la ciudad.

Dispone de otras unidades,en 2 y 3 dormitorios con vistas francas y parciales al Rio.

Amenities: La parte superior del complejo, posee pileta exterior, la casona con balcón aterrazado, convertida en el club house, gimnasio, y gran parque de espacios verdes en áreas comunes.

Observaciones:

– Cocheras cubiertas para cada unidad, con o sin baulera.
– Calefacción por radiadores y conexión para aires split en todos los ambientes.
– Aberturas de aluminio con sistema DVH.
– Amoblamientos Reno
– Ingreso al condominio de casas, desde un portón de único acceso vehicular, por sistema automatizado y por personal de seguridad a cargo.

Zonificación: A sólo 12 minutos del centro y 3 minutos del shopping más cercano, de la cancha de Central, colegios, bancos, bares, restaurantes de la costa de Rosario, vistas hacia un puente infinito al norte y hacia el sur las torres del centro, y se conjugan con una avenida perimetral que circunda la ciudad, el pintoresco Paseo Ribereño, arteria de la ciudad que te lleva a cualquier punto de Rosario y alrededores.

Unidades disponibles – Casas dúplex de 2 y 3 dormitorios.

*precio cargado es el  de tipología A

*consultar posibilidad de permuta y/o financiación.

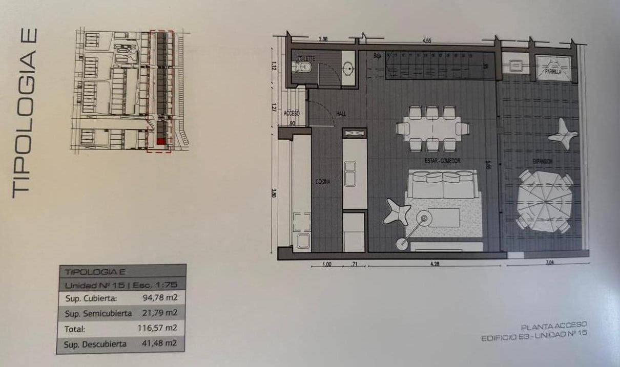
A – 2 habitaciones-103,50M2

C – 3 habitaciones-160M2
D – 3 habitaciones-160M2
E – 2 habitaciones-117M2
Los precios, varían según vistas y ubicación:
2 dormitorios: USD 250000/350000-    Con vista parcial o franca al río y con vistas al parque y a calle Alvarez Thomas .

3 dormitorios: USD 440000/460000 – Vista franca al río.

Para ver la ubicación de la propiedad, hace click acá.
Si necesitas vender una propiedad, conocé como trabajamos haciendo click acá.

Visión General

  • ID 41643
  • Tipo
  • Dormitorios 2
  • Baños 2
  • Garages 1
  • Dimensión 103,5 m2
  • Año de Construcción A estrenar

Detalles

  • ID Propiedad 41643
  • Precio u$s 1.200
  • Tipo Propiedad
  • Tipo Operación
  • Ambientes 4
  • Dormitorios 2
  • Baños 2
  • Año de Construcción A estrenar
  • Dimensión 103,5 m2
  • Garages 1
  • Zonificación Alberdi
  • Condición Excelente
  • Situación Vacío
  • Orientación Noroeste
  • Sup. Cubierta 90,85 m2
  • Sup. Semicubierta 12,20 m2
  • Toilette 1

Propiedades que pueden interesarte

Comparar

Casa en Álvarez Thomas al 2700, Alberdi

Andrea Rizza

Agente de Ventas